Prízemie domu z 80. rokov prerobili odborníci zo štúdia ArchArt na moderný a funkčný obytný priestor. Zväčšenú obývačku doplnil aj náš sedací nábytok.
Vždy radi vidíme, keď naše výrobky využívajú vo svojich realizáciách aj architekti či dizajnéri. Prostredníctvom nášho blogu vám teda dnes predstavíme jednu rekonštrukciu interiéru, ktorá vyšla z dielne architektonického a projekčného štúdia ArchArt z Dubnice nad Váhom. Vďaka ich kreatívnemu zásahu vznikol na prízemí staršieho rodinného domu moderný obytný priestor.
Pôvodný stav bol už demodé
Veľká obývačka, otvorené a prepojené priestory, to sú požiadavky na moderný interiér. Prízemie stavby z 80. rokov však súčasnému štandardu vôbec nezodpovedalo. Aj mladý muž, ktorý v dome býva, videl svoje bývanie inak. „Požiadavkou klienta bolo dosiahnuť moderný a komfortný priestor, kde sa bude cítiť príjemne so svojou rodinou a priateľmi,“ hovorí Radoslav Dzurko, konateľ spoločnosti ArtArch.

Pôvodná kuchyňa nebola ani moderná, ani funkčná. Značnú časť priestoru zaberala zbytočne veľká špajza. Zdroj: archív ArtArch
V kuchyni sa nachádzala stará kuchynská linka, ktorá už mala obdobie svojej slávy dávno za sebou, a obývačke zas dominovala zbytočne mohutná sedacia súprava a členitá obývacia stena. Tento nábytok celý priestor ešte zmenšoval.

Pôvodná obývačka bola malá a nábytok v nej zastaraný. Zdroj: archív ArchArt
Problém však nebol len v starom nábytku, architekti boli nútení aj búrať. „Na prízemí sme museli odstrániť jednu priečku, aby sme dosiahli veľký open space pre obývačku. V kuchyni sme zas zmenšili zbytočne veľkú a doteraz nevyužívanú špajzu. Zväčšil sa tým priestor kuchyne,“ opisuje dôvody pre búracie práce Radoslav Dzurko.

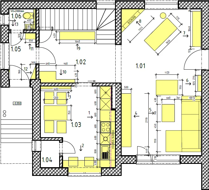
Pôvodný stav prízemia domu z 80. rokov. Žltou farbou je naznačený rozsah búracích prác. Zdroj: archív ArchArt

Súčasný stav prízemia po interiérových úpravách ArchArt. Špajza sa radikálne zmenšila a obývačka zväčšila. Zdroj: archív ArchArt
Jednoduché a čisté línie dominujú celej prestavbe
Vďaka zmenšeniu špajzy vzniklo v kuchyni väčšie miesto pre jedálenský kút, kde si v súčasnosti pohodlne sadnú štyria ľudia. Starú kuchynskú linku nahradil jednoduchý nábytok s farebným podsvietením a modernými vstavanými spotrebičmi.

Zmenšením špajze vznikol priestor pre plnohodnotný jedálenský kút, ktorý pôvodne absentoval. Zdroj: archív ArchArt

Zaujímavým dizajnovým prvkom kuchynskej linky je farebné osvetlenie pracovnej dosky.
Vďaka zbúranej stene sa radikálne zväčšila aj obývacia miestnosť a architekti tak mohli splniť predstavy klienta. „Požiadavkou klienta bolo mať priestor na čítanie kníh, ktorý sme vytvorili pri biokrbe použitím leňošky Miami. Chcel mať aj veľký priestor s obrovskou televíziou, na ktorú sa dá pohodlne pozerať z gauča,“ vysvetľuje Dzurko.

Čítací kútik s leňoškou Miami bol vytvorený na výslovné želanie klienta. Zdroj: archív ArchArt
Aby umocnili pocit jednoduchosti a čistoty celého priestoru, zvolili architekti typ sedacej súpravy Paris, ktorá je elegantná a priestorovo nenáročná. Ako poťahový materiál vybrali veľmi jemnú tkanú látku Alex.

Rohová sedačka Paris s taburetom poskytujú dostatok miest na sedenie a napriek tomu nepôsobia zbytočne mohutne. Zdroj: archív ArchArt

Požiadavkou klienta bolo mať veľkú televíziu, na ktorú sa dá pozerať z pohodlnej pohovky. Zdroj: archív ArchArt
Na jednoduché a čisté línie bol kladený dôraz počas celej rekonštrukcie. Úzko s tým súviselo aj prepojenie celého podlažia. Úprav sa tak, samozrejme, dočkala aj rozľahlá predsieň a malá toaleta. Celé poschodie zjednotila rovnaká podlaha a hnedá farba, ktorá dominuje celej prestavbe.

Obývačku, kuchyňu aj predsieň zjednotila rovnaká podlaha. Zdroj: archív ArchArt

Prepojenie priestoru sa umocnilo posuvnými dverami do kuchyne a zrušením dverí do obývačky. Zdroj: archív ArchArt

Moderného faceliftu sa dočkala aj malá toaleta na prízemí. Zdroj: archív ArchArt
Váš PHASE Tím
Kontakty na architektonickú a projekčnú kanceláriu ArchArt:
Telefon: 0949 410 360
E-mail: info@archart.sk
Adresa: Partizánska 1282/16, 018 41 Dubnica nad Váhom